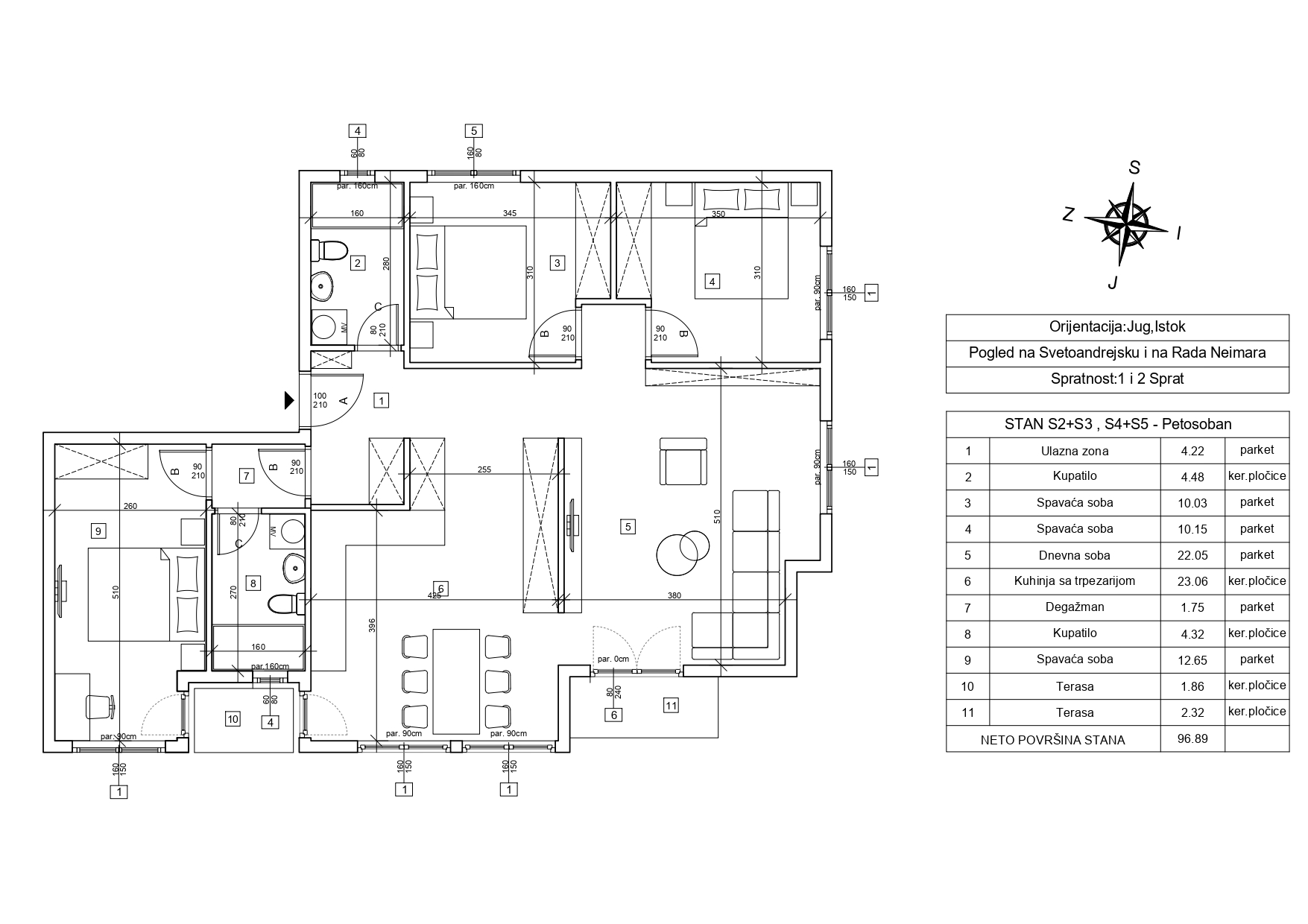
Render Fasade: Hodnik: Dizajn Kupatila: ZA LISTU MATERIJALA KLIKNITE OVDE Stanovi: *Svi renderi su informativnog karaktera* Dostupan Rezervisan Prodat Dostupan Rezervisan Prodat STAN O2 - Visoko Prizemlje 30.07m2 Jednosoban Nacrt stana O2 sa kotama: Nacrt stana O2 (30.07m2) sa kotama: STAN S1 - Visoko Prizemlje 31.05m2 Jedinoiposoban Nacrt stana S1 sa kotama: Nacrt stana S1 (31.05m2) sa kotama: STAN S2-1.Sprat STAN S4-2.Sprat 54.58m2 Trosoban Nacrt stana S2 i S4 sa kotama: Nacrt stana S2,S4 sa kotama: STAN S3-1.Sprat STAN S5-2.Sprat 42.56m2 Dvosoban Nacrt stana S3 i S5 sa kotama: Nacrt stana S3,S5 sa kotama: Opcija spajanja dva stana u jedan: STAN S2+S3 - 1.Sprat STAN S4+S5 - 2.Sprat 96.89m2 Petosoban Nacrt stana S2+S3 i S4+S5 sa kotama: Nacrt stana S2+S3,S4+S5 sa kotama: Prodaja garažnih mesta: Garazno mesto-GM1(gore) Garazno mesto-GM2(dole) Garazno mesto-GM3(gore) Garazno mesto-GM4(dole) Garazno mesto-GM5(gore) Garazno mesto-GM6(dole) 14.05m2 po parking mestu Nacrt garaže sa kotama: Nacrt garaže sa kotama: Izdvajamo nesto od lokalnih sadržaja: Vrtić 1001 Radost - 70 metara OŠ Janko Veselinović - 100 metara TC Beo - 400 metara Šumice - 400 metara Dom Zdravlja - 600 metara Osma gimanzija - 800 metara Lokacija Zgrade: