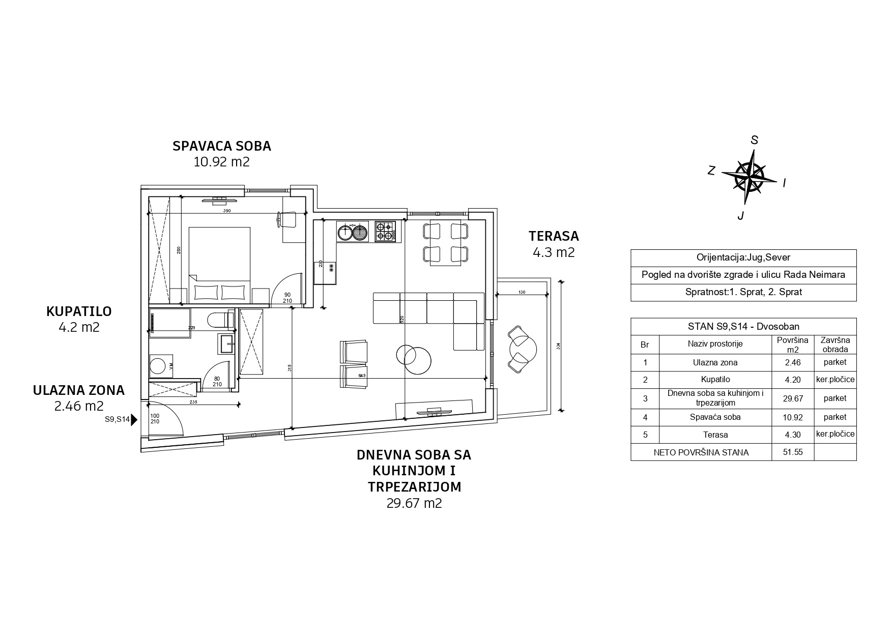
Svi stanovi su prodati. Za objekat je dobijena pravosnažna upotrebna dozvola. Hvala na poverenju! -> Uživo slike toka gradnje objekta <- -> Uživo slike završenog objekta <- Fasada: Hodnik: Render potencijalnog dizajna dnevne sobe: Render dizajna kupatila: ZA LISTU MATERIJALA KLIKNITE OVDE Dostupan Rezervisan Prodat Dostupan Rezervisan Prodat STAN S1-VPR 28.34m2 Jednosoban Nacrt stana S1 bez terase i sa terasom (28.34m2) sa kotama: STAN S3-VPR STAN S8-1. sprat STAN S13-2. sprat 44.76m2 Dvosoban Nacrt stana S3,S8,S13 (44.76m2) sa kotama: STAN S4-VPR 45.38m2 Dvosoban Nacrt stana S4 (45.38m2) sa kotama: STAN S5-1. sprat STAN S10-2. sprat STAN S15-Pk 28.26m2 Jednosoban Nacrt stana S5,S10,S15 (28.26m2) sa kotama: STAN S6-1. sprat STAN S11-2. sprat STAN S16-Pk 28.33m2 Jednosoban Nacrt stana S6,S11,S16 (28.33m2) sa kotama: Varijanta br. 1 za stan S7 i S12: STAN S7-1. sprat STAN S12-2. sprat 45.39m2 Dvosoban Varijanta br. 2 za stan S7 i S12: Nacrt stana S7,S12 (45.39m2) sa kotama: STAN S9-1. sprat STAN S14-2. sprat STAN S19-Pk 51.55m2 Dvosoban Nacrt stana S9,S14,S19 (51.55m2) sa kotama: *Renderi izgleda stana su informativnog karaktera* Izdvajamo nesto od lokalnih sadrzaja: